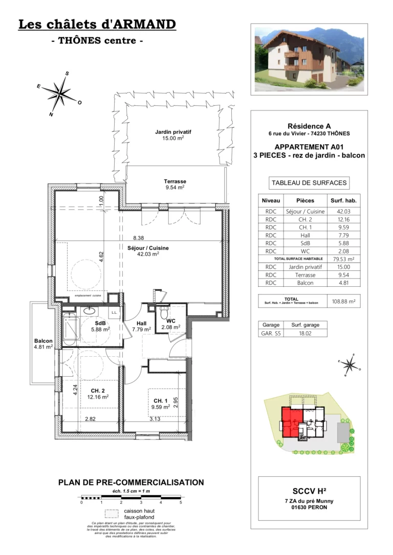
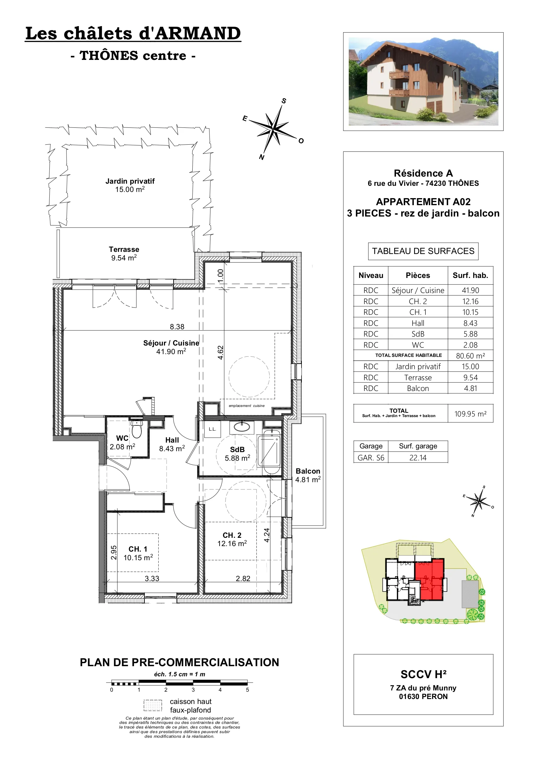
Département
Situé en plein centre ville de Thônes, à 3 minutes à pied des commerces et activités, trouvez ici votre futur appartement.
Les Chalets d’Armand, ce sont deux petites résidences, de 4 et 5 appartements allant du T3 au T8. Ces habitations ont été pensé pour vous offrir des espaces de vie spacieux et lumineux. Complétées par leurs espaces extérieurs, vous pourrez profiter d’une vue imprenable sur les montagnes environnantes. Enfin, ces résidences, classées A sur le DPE, vous offriront confort de vie et de faibles dépenses énergétiques.
Superficie : de 79 à 164 m2
Prix : à partir de 478 000 €













